Die Meldung in Bildern
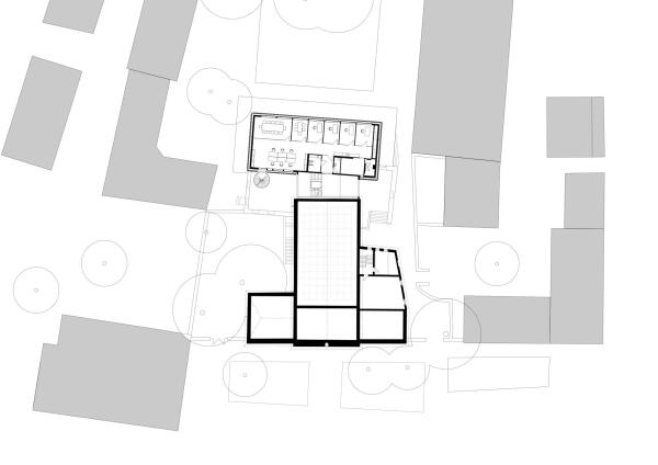
Haus der Weimarer Republik
Museum von Muffler Architekten
Bild 20/28
Grundriss 1. Obergeschoss
Bild: Muffler Architekten