Die Meldung in Bildern
Epochencollage
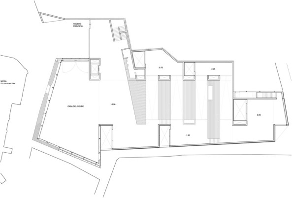
Museum in Spanien von Exit Architects
Bild 23/30