Die Meldung in Bildern
Grober Granit für Xu Wei
Museum in Shaoxing von ACRC (UAD)
Bild 30/38
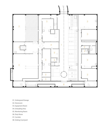
Grundriss Untergeschoss
Bild: UAD - ACRC