Die Meldung in Bildern
Hyperboloide Luftigkeit
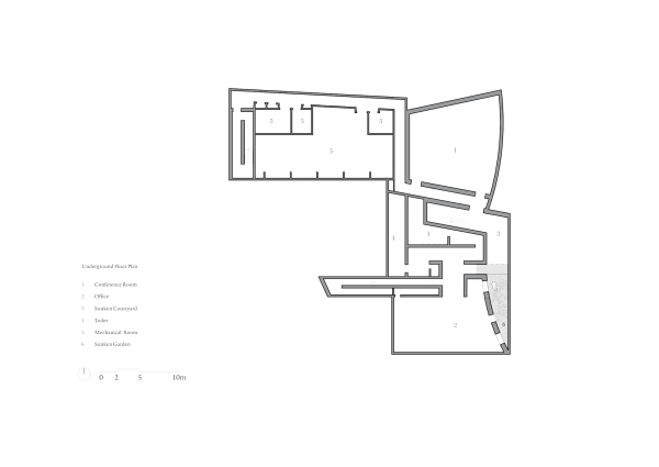
Museum in Shandong von Studio Zhu Pei
Bild 20/28
Bild: Studio Zhu Pei