Die Meldung in Bildern
Ziegelblock im Hochhauswald
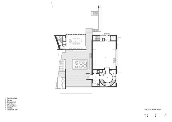
Museum in Nordchina von Vector Architects
Bild 40/45
Bild: Vector Architects