Museum in Künzelsau von David Chipperfield Architects
Bild 8/18
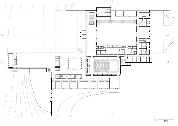
Grundriss Erdgeschoss
Bild: David Chipperfield Architects