Die Meldung in Bildern
Comeback der Aleppo-Kiefer
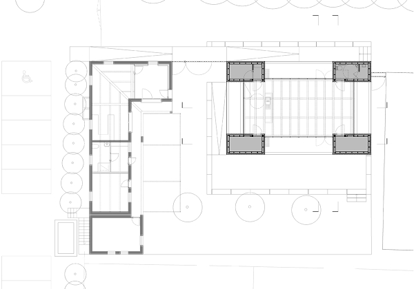
Multifunktionshalle in Coudoux von Régis Roudil
Bild 7/14
Bild: atelier Régis Roudil