Moschee von Neogenesis+Studi0261 in Raichur
Bild 19/30
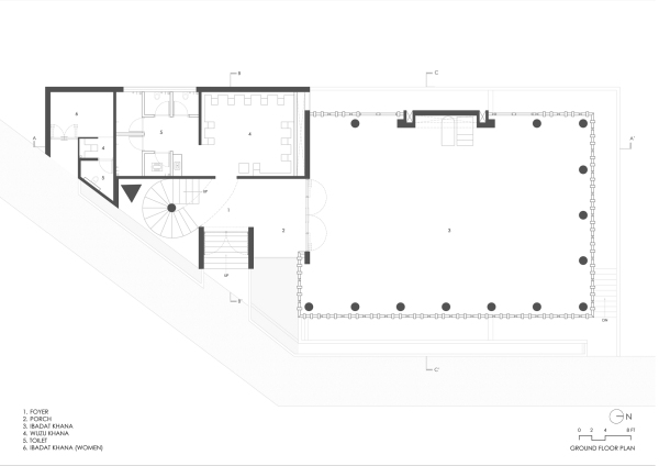
Grundriss Erdgeschoss
Bild: NEOGENESIS+STUDI0261