Die Meldung in Bildern
Abstrahiert in Bangladesch
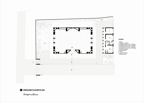
Moschee von Cubeinside
Bild 27/35
Bild: Cubeinside Design