Die Meldung in Bildern
Lebendiges Raster
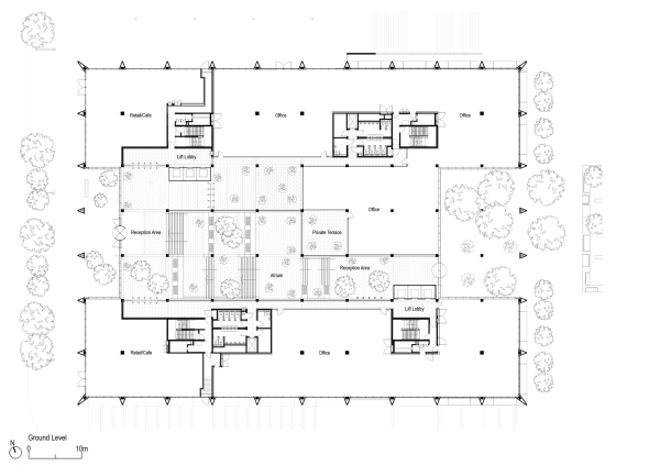
Mixed Use von Foster + Partners in Belval
Bild 16/24
Grundriss EG
Bild: Foster + Partners