Mixed-Use-Quartier in Lyon von David Chipperfield Architects
Bild 23/27
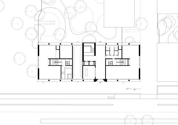
Grundriss Erdgeschoss Bürogebäude
Bild: DCA