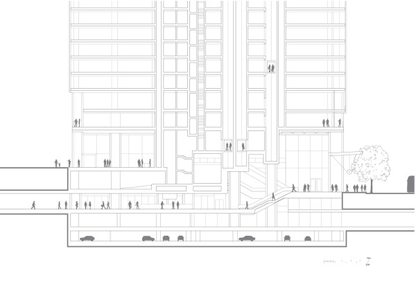
Schnitt Durchgangsebene und Stadtraum

Bild 38/40

Schnitt Durchgangsebene und Stadtraum

Bild: Make Architects