Die Meldung in Bildern
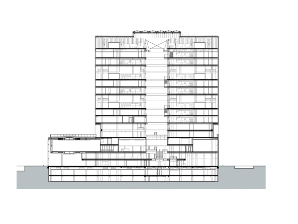
Leitmotiv Transparenz
Ministeriumsumbau in Den Haag von OMA
Bild 43/45
Bild: OMA