Die Meldung in Bildern
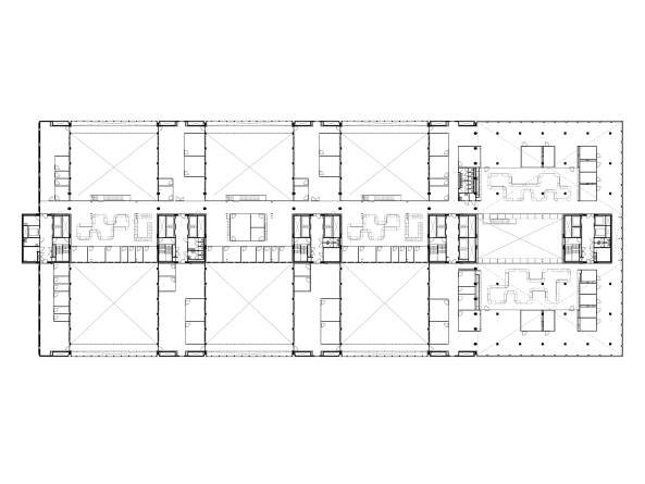
Leitmotiv Transparenz
Ministeriumsumbau in Den Haag von OMA
Bild 39/45
Grundriss 8.OG
Bild: OMA