Die Meldung in Bildern
Leitmotiv Transparenz
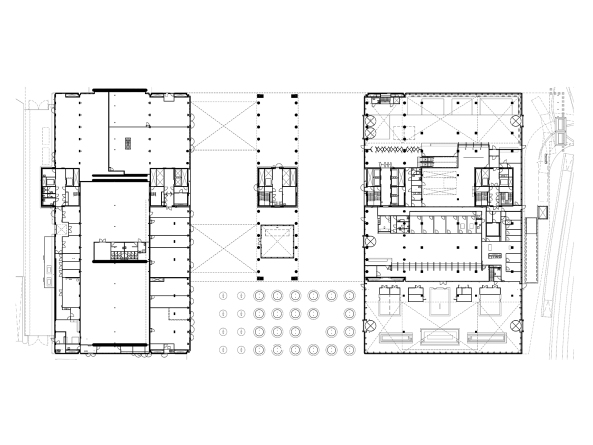
Ministeriumsumbau in Den Haag von OMA
Bild 37/45
Grundriss Erdgeschoss
Bild: OMA