Die Meldung in Bildern
Privater Luftraum
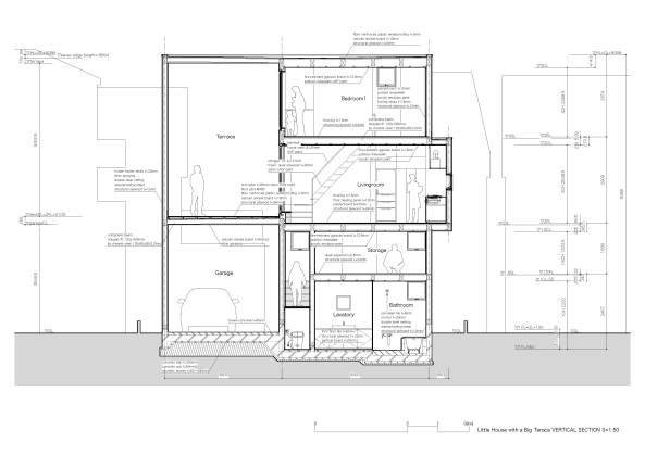
Minihaus in Tokio
Bild 15/19
Bild: Takuro Yamamoto Architects