Cloud2, Wohnhaus in Köln-Müngersdorf, smo Architektur, Seyed Mohammad Oreyzi, Raumplan versus plan libre

Bild 11/13

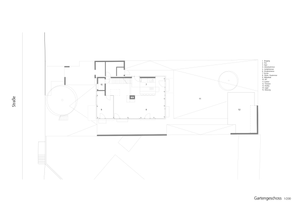
Grundriss Gartengeschoss