Die Meldung in Bildern
Fake oder echt?
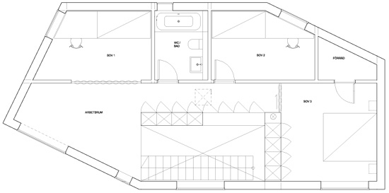
Minihaus bei Göteborg
Bild 9/10