Die Meldung in Bildern
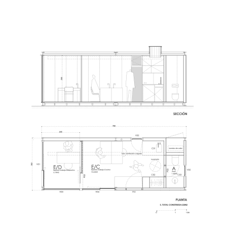
Modular arbeiten
Minibüro in Madrid von delavegacanolasso
Bild 19/22
Bild: delavegacanolasso