steel, glass, fiber glass, cloud, theca, Theka, Wolke, Glasfaser, Wolke, Eiffelturm, Rom, EUR, Fuksas, Messe, Hotel, conference room, Forum, Baunetz, Massimiliano Fuksas, Doriana Fuksas

Bild 19/21

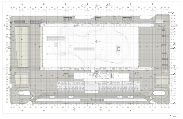
Erdgeschoss