Menschenrechte-Museum in Panama-Stadt von Mallol Arquitectos
Bild 30/34
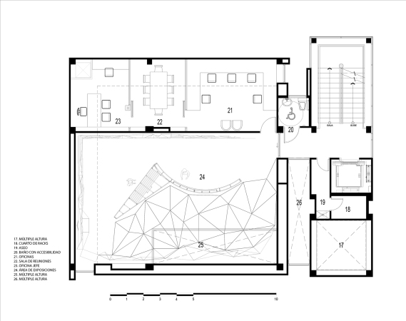
Ebene 3
Bild: Mallol Arquitectos