Menschenrechte-Museum in Panama-Stadt von Mallol Arquitectos
Bild 28/34
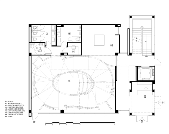
Ebene 1
Bild: Mallol Arquitectos