Die Meldung in Bildern
Im Dazwischen wohnen
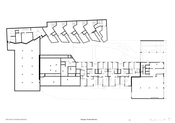
Meili, Peter Architekten in München
Bild 15/28
Grundriss Zwischengeschoss