Mehrzweckhalle in Oberschwaben von Atelier Kaiser Shen
Bild 30/39
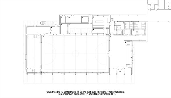
Grundriss EG
Bild: Atelier Kaiser Shen