Die Meldung in Bildern
Kork-Relief in Berlin-Mitte
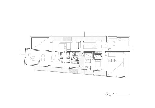
Mehrfamilienhaus von PPAG architects
Bild 16/19
Grundriss 2. Obergeschoss
Bild: PPAG architects