Die Meldung in Bildern
Wohnen bei Barcelona
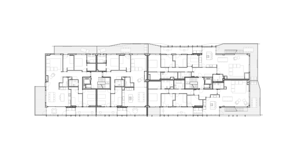
Mehrfamilienhaus von Bailo Rull Arquitectos
Bild 17/19
2. Obergeschoss