Die Meldung in Bildern
Begegnungen im Treppenhaus
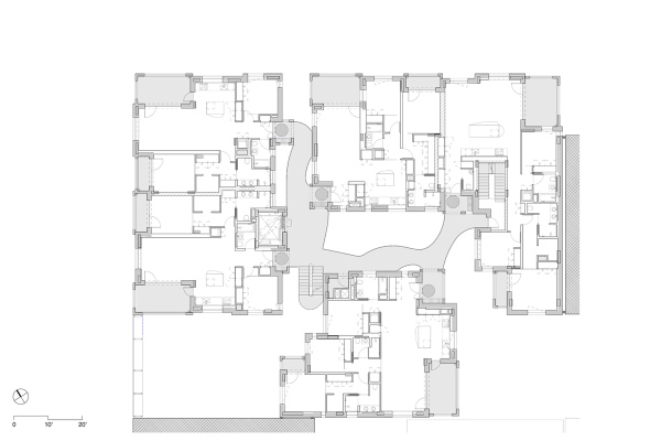
Mehrfamilienhaus in New York von SO-IL
Bild 14/19
Grundriss 2. Obergeschoss
Bild: SO-IL