Die Meldung in Bildern
Gelungene Bescheidenheit
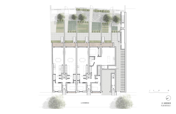
Mehrfamilienhaus in Montréal von ADHOC
Bild 14/19
Bild: ADHOC