Die Meldung in Bildern
Zwischen Wald und Wiese
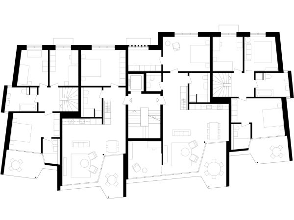
Mehrfamilienhaus in Baden von KNTXT Architektur
Bild 18/20
1. Obergeschoss
Bild: KNTXT Architektur