Mehrfamilienhaus im Thurgau von Lukas Imhof Architektur
Bild 26/41
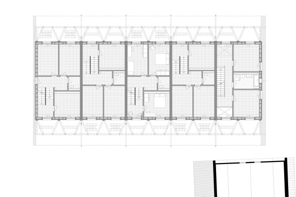
Obergeschoss
Bild: Lukas Imhof Architektur