Mehrfamilienhaus bei Nürnberg von ATT Architekten
Bild 14/18
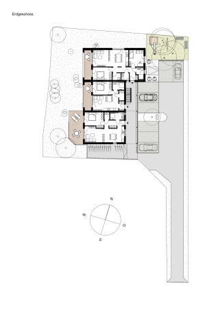
Grundriss Erdgeschoss
Bild: ATT Architekten