Mehrfamilienhaus-Erweiterung in Zürich von Bob Gysin Partner Architekten
Bild 24/29
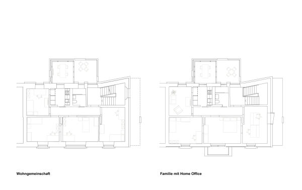
Nutzungsszenarien
Bild: Bob Gysin Partner Architekten