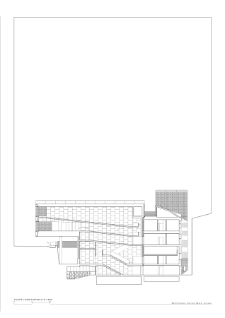
Mediathek von Beaudouin Architectes & Ivry Serres Architectures

Bild 50/52

Bild: Beaudouin Architectes