Mediathek von Beaudouin Architectes & Ivry Serres Architectures
Bild 41/52
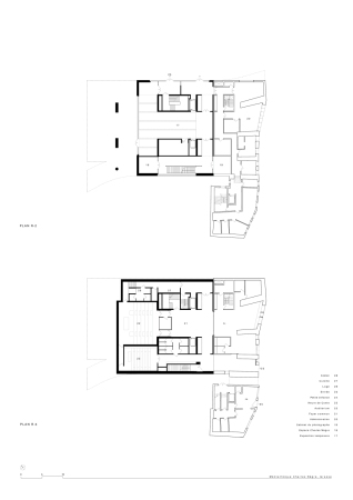
Grundriss 2. und 3. Untergeschoss
Bild: Beaudouin Architectes