Mecanoo und Royal HaskoningDHV in Ede
Bild 19/22
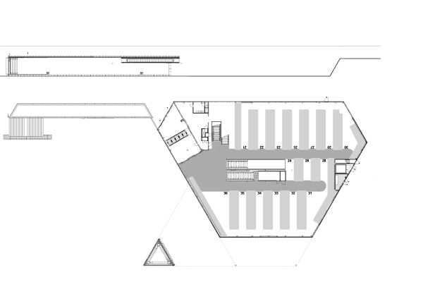
Grundriss 1. Obergeschoss
Bild: Mecanoo/Royal HaskoningDHV