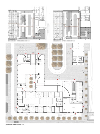
2. Platz: Christoph Mäckler Architekten, Frankfurt/M.

Bild 19/41

2. Platz: Christoph Mäckler Architekten, Frankfurt/M.

Bild: Christoph Mäckler Architekten