Mathew and Ghosh Architects in Bengaluru
Bild 24/32
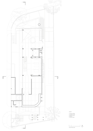
Grundriss Erdgeschoss
Bild: Mathew and Ghosh Architects