Die Meldung in Bildern
Reflexionen am Öresund
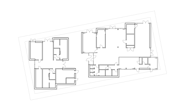
Marine Education Center Malmø von Nord Architects
Bild 12/17
Grundriss EG
Bild: Nord Architects