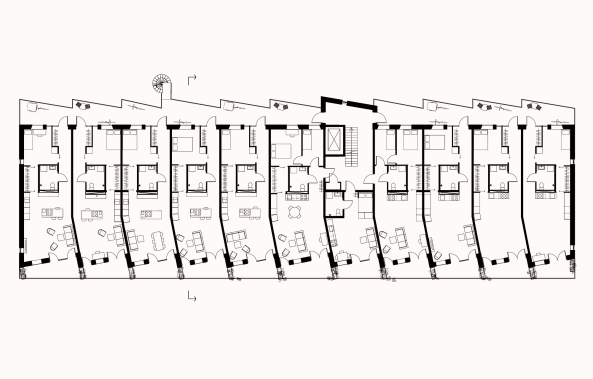
Malmöer Hotel von hauschild + siegel
Bild 8/11
Grundriss 3. bis 5. Obergeschoss
Bild: hauschild + siegel