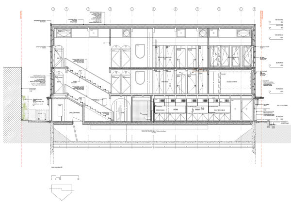
Makerspace von Guillaume Ramillien Architecture
Bild 31/34
Schnitt
Bild: Guillaume Ramillien Architecture