Ludwig Godefroy Architecture in La Paz
Bild 21/24
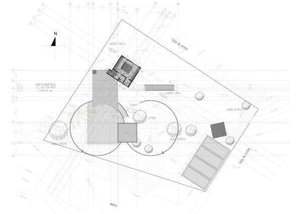
Grundriss 2. Obergeschoss
Bild: Ludwig Godefroy Architecture