Londoner Bürogebäude von Squire & Partners
Bild 37/38
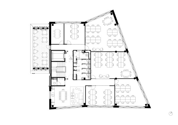
Grundriss 3. Obergeschoss
Bild: Squire & Partners