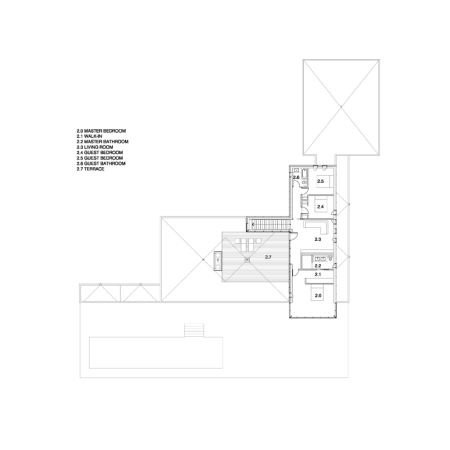
Landhaus in Quebec; Les architectes FABG; Quebec; Mont Sutton;  Rosenberry Residence; Kanada; Neubau; Wohnhaus; Einfamilienhaus

Bild 15/17

Bild: Les Architectes FABG