Die Meldung in Bildern
Vielseitiges (Een-)Werk
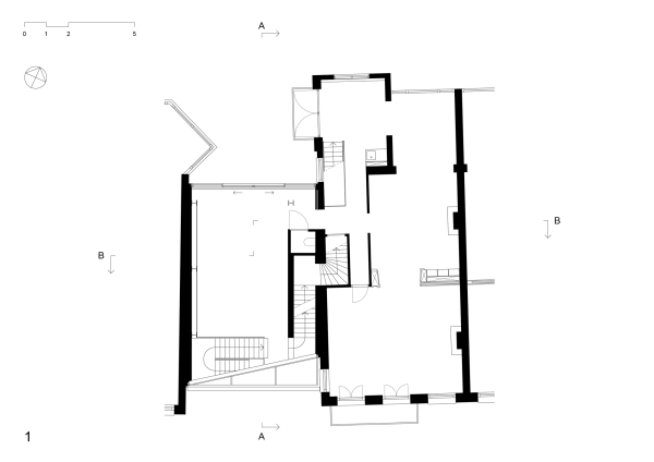
Kunstraum in Amsterdam von Barend Koolhaas
Bild 13/16