Die Meldung in Bildern
Kulturmeer Mailand
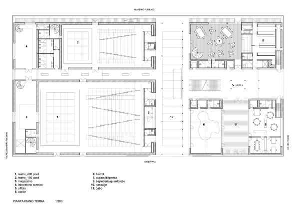
Kulturzentrum von bunker-arc
Bild 10/19
Bild: bunker-arc