Die Meldung in Bildern
Robuste Infrastruktur
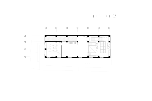
Kulturzentrum von Taller ACÁ in Guatemala-Stadt
Bild 24/28
2. Obergeschoss
Bild: Taller ACÁ