Kulturzentrum von Studio Zhu-Pei im Osten Chinas
Bild 21/27
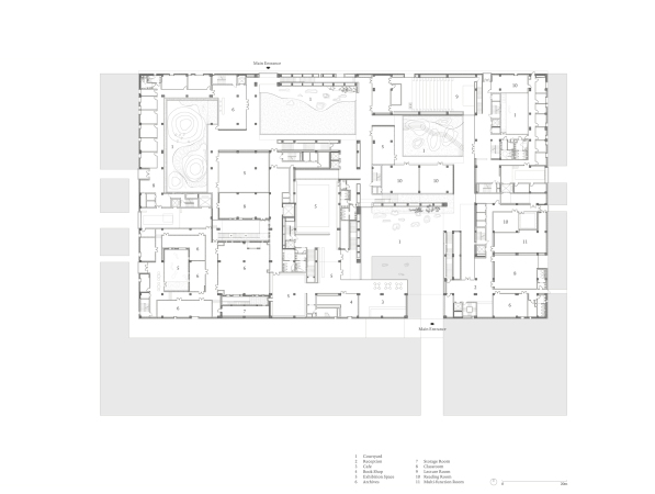
Grundriss: Erdgeschoss
Bild: Studio Zhu-Pei