Kulturzentrum von Dominique Coulon & Associés
Bild 31/37
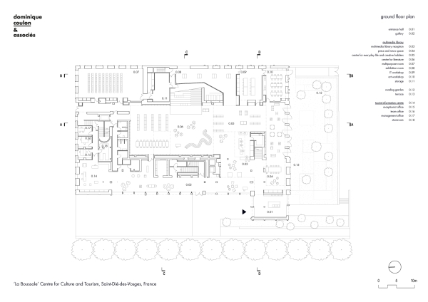
Grundriss Erdgeschoss
Bild: dominique coulon & associés