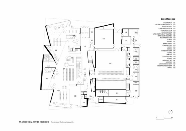
Frankreich, France, Fassade, facade, Beton, concrete, Stahl, steel, Theater, theatre, Kuturzentrum, multicultural centre, Isbergues

Bild 26/32