Kultur- und Geografiezentrum in Jiangnan von ConCom Studio
Bild 35/40
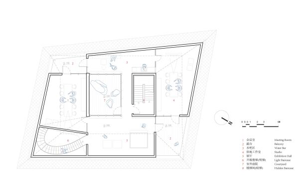
Grundriss Obergeschoss
Bild: ConCom Studio